Call! +48 515 383 053

Location where tradition meets modernity.

CONTACT

WILLA PODSKALE
Podskale 1, 30-522 Cracow

Rent area

500 sqm

Parking

WILLA
PODSKALE

"Lorem ipsum dolor sit amet, consectetur adipiscing elit, sed do eiusmod tempor incididunt ut labore et dolore magna aliqua. Ut enim ad minim veniam, quis nostrud exercitation ullamco laboris nisi ut aliquip ex ea commodo consequat. Duis aute irure dolor in reprehenderit in voluptate velit esse cillum dolore eu fugiat nulla pariatur. Excepteur sint occaecat cupidatat non proident, sunt in culpa qui officia deserunt mollit anim id est laborum."

SPACE PLAN
CONDITIONS

LEASE
TERMS

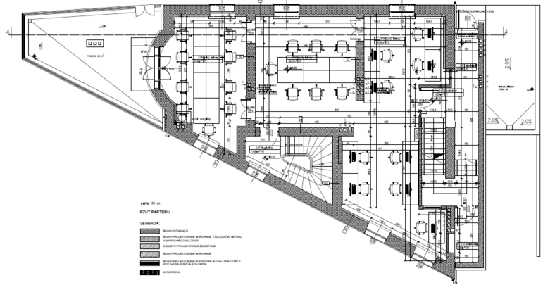
Ground floor: 176,12 sqm

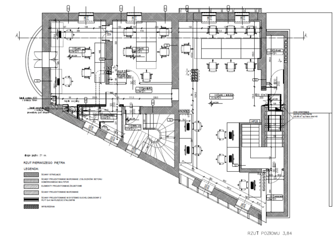
First floor: 133,57 sqm

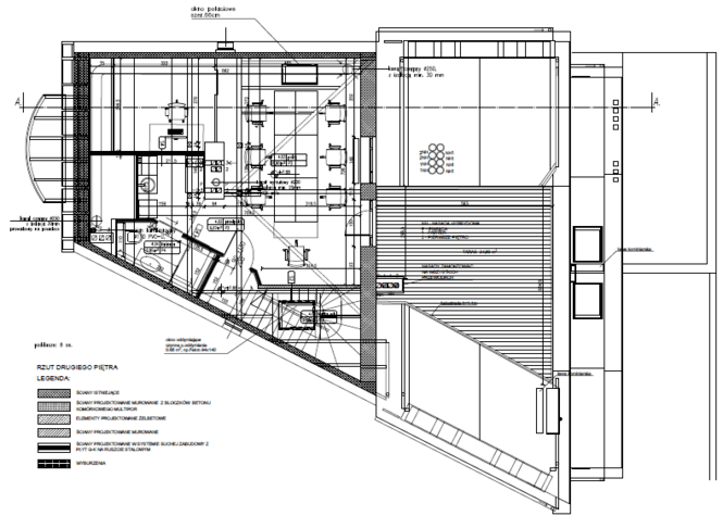
Second floor: 140,74 sqm,

Balcony on +2

Third floor: 48,21 sqm, Terrace +3

PROJECTION OF THE AREA

DO YOU HAVE
ANY QUESTIONS?
WRITE

Tadeusz Grabowski

Contact

+48 515 383 053

tadeusz.grabowski@pl.knightfrank.com

Knight Frank LLP, based in London, is a leading and independent global real estate advisor.

It employs over 19,000 people in over 500 offices in 60 countries. Knight Frank advises clients

ranging from individual owners and buyers to major developers, investors and corporate tenants.